Santos Jaya Abadi

SantosJayaAbadi

Scope of design service :
Architectural, Structural, MEP services.

Building specification :

  • Building function : Coffee Factory (Kapal Api Coffee Group).
  • Location : Krikilan – Gresik, East Java.
  • Land size : –
  • Total building floor : –
  • Design period : 2010 ~ 2011.

Mahaghora

Mahaghora2
previous arrow
next arrow

Scope of design service :
Architectural, Structural, MEP & Construction Supervision services.

Building specification :

  • Building function : Peanuts Factory.
  • Location : Surabaya, East Java.
  • Land size : 5,080 sqm.
  • Total building floor : 4,074 sqm.
  • Design period : 2010 ~ 2011.

Hakiki Donarta

HakikiDonarta

Scope of design service :
Architectural, Structural, MEP & Construction Supervision services.

Building specification :

  • Building function : Essence Factory.
  • Location : Gunung Gangsir, Pasuruan, East Java.
  • Land size : 59,323 sqm.
  • Total building floor : 20,475 sqm.
  • Design period : 2012.

Garudafood Crackers

GarudafoodCrackers

Scope of design service :
Architectural, Structural, MEP services.

Building specification :

  • Building function : Crackers warehouse.
  • Location : Driyorejo, Gresik, East Java.
  • Land size : 45,875 sqm.
  • Total building floor : 28,250 sqm.
  • Design period : 2010 ~ 2011.

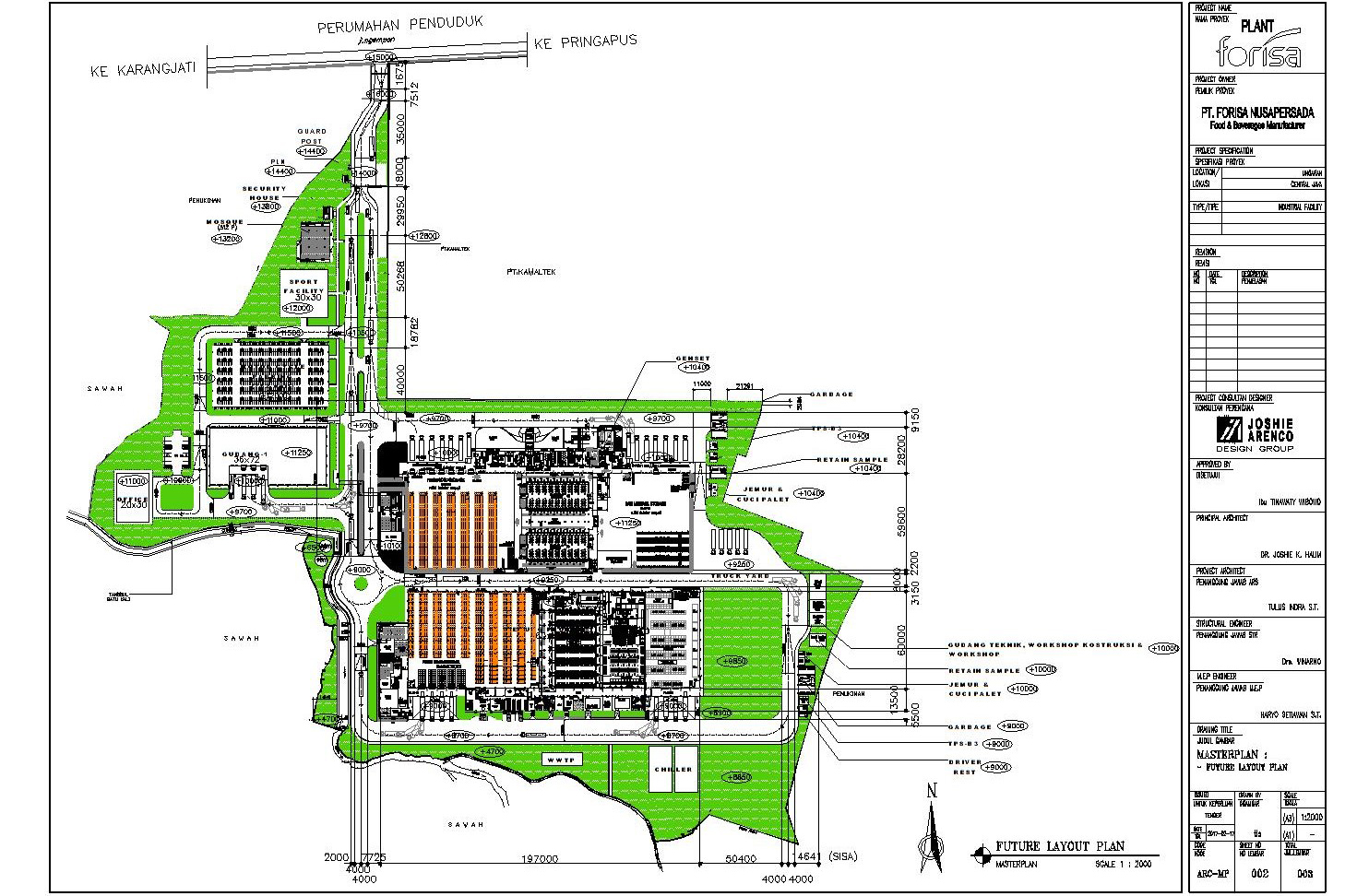
Forisa Nusapersada – Ungaran

Forisa ungaran
previous arrow
next arrow

Scope of design service :
Architectural, Structural & Construction Supervision services.

Building specification :

  • Building function : Food & Bevereges Factory.
  • Location : Jl. Ngempon, Kab. Ungaran, Central Java.
  • Land size : 77,200 sqm.
  • Total building floor : 18,987 sqm.
  • Design period : 2017.